Blog
ブログ
家デコおすすめのプランをご紹介♪【広島市佐伯区皆賀】
家デコでは、現在広島市佐伯区皆賀で住宅用土地を2区画分譲しています。
今回のブログでは、こちらの土地に建てる家のおすすめプランをご紹介します♪
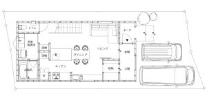
スペースを有効活用した間取り
今回おすすめプランとしてご紹介させていただく間取りは、コンパクトながらスペースに無駄のない間取りです。
広々とした土間玄関はリビングと収納スペースに面していて、お買い物をして帰った際は大容量の収納に直接アクセスできる、スムーズな動線を意識しました。
キッチンの奥や洗面脱衣所横にもちょっとした収納を設けていて、スペースを有効活用しています。
2階にはランドリースペースやファミリークロークを設け、ご家族の衣類や小物を一箇所でまとめて管理できるように。ランドリースペースはフリースペースとして、ちょっとした家事や趣味を楽しむスペースとしても活用していただけます。
家デコが建てる住まいは「高気密・高断熱」にこだわっているので、空気の移動を防ぐことを目的とした扉を設けなくても大丈夫なので、開放感のある空間を実現できます(^^)
空間のコーディネートはナチュラルに
▲キッチンからリビングを見た時のイメージパース
グレージュの色味を中心に、木目を採用してナチュラルなテイストの空間にコーディネートしています。
▲リビングからキッチンを見た時のイメージパース
スケルトン階段が空間のアクセントになるLDK空間です。断熱性能と気密性能にこだわっているので、リビング階段にしても室内の快適な空間を保つことができる住まいになっています。
もちろん、これ以外にお好みのテイストがありましたら、ぜひ写真などでお知らせください(^^)
皆賀の土地はこんな場所にあります
佐伯区皆賀エリアは、現在子育て世帯に人気のエリアです!
人気の理由①交通アクセスが良い
現在販売中の皆賀の土地は、JR五日市駅まで徒歩15分程の場所。
JRの他に、広電五日市駅も利用できます。バス停も、広島電鉄「昭和台」まで徒歩5分です。
車で移動する際にも、西広島バイパスの入口が近いので、広島市中心部や廿日市方面に行く際もスムーズに移動できます。
人気の理由②買い物の環境が充実している
周辺にはコンビニエンスストアやスーパー、ドラッグストアが多数あり、日ごろのお買い物にも便利です。
また、大型商業施設のアルパーク、LECTには車で10分前後、2024年12月にグランドオープンしたイオンタウン楽々園にも約13分で行けるなど、各方面にアクセスの良い立地です。
人気の理由③子育てや教育環境が整備されている
広島市佐伯区の子育て支援は、主にこども家庭センター(地域子育て支援センター)を中心に展開されており、気軽に親子が集えるオープンスペースや、離乳食教室、オンラインでの交流会などの活動を通して、子育て中の保護者をサポートしています。
皆賀の土地は広島市立五日市東小学校まで徒歩3分、登下校中には地域の方々が見守りに立ってくださっているので、安心して通学することができます。
販売中の土地は全2区画【家デコでの建築条件付き】

面積:103.63㎡(31.34坪)
土地価格:2,390万円
102.90㎡(31.12坪)
土地価格:2,390万円
今なら【NO.1】【No.2】お好きな方の土地をお選びいただけます。詳しい土地の情報は家デコ販売ページをご覧ください。
家デコが建てる家は「高気密・高断熱」にこだわった高性能住宅

高気密・高断熱で造られた家は、外気の影響を受けにくく、室内空間が快適なのはもちろん、エアコン効率が良いので光熱費もグッと抑えることができます。
家デコの家づくりでは、高性能の断熱材やサッシ、換気システムを採用し、丁寧な気密処理を行うことで、1年を通して住まいを快適な空間に保ちます。
快適な空間で、住んでからの光熱費も抑えることができるなんて、家計にも環境にも優しくて嬉しいですよね(^^)
今なら、販売中の土地の横に建築したモデルハウスの見学もしていただけます!高気密・高断熱の住まいをぜひ体感しに来てくださいね♪
関連記事
-
2026.03.11
販売中の住まい「皆賀の家」、家デコスタッフがお手入れしています!~室内のお手入れ編~
- 家デコの日常
- #佐伯区皆賀PJ
2026年3月現在販売中の、家デコのモデルハウス「皆賀の家」。 前回のブログで、外構のお手入れをしている様子をご紹介しました(^^) 前回のブログはこちらから→→【~外構お手入れ編~】 今回のブログでは、室内のお手
-
2026.03.04
販売中の住まい「皆賀の家」、家デコスタッフがお手入れしています!~外構のお手入れ編~
- 家デコの日常
- #佐伯区皆賀PJ
家デコでは、販売中の物件の管理も自分たちの手で行っています(^^) 今日は、家デコスタッフのお仕事の様子として、家デコのモデルハウス「皆賀の家」のお手入れの様子をご紹介します! まずこちらが家デコのモデルハウス「皆賀の家」です。
-
2026.02.27
3月に家デコの「皆賀の家」見学会を開催します!
- #テスト様進捗タグ
広島市佐伯区皆賀にある、家デコのモデルハウス「皆賀の家」。現在販売中で、3月に見学を開催します! 家デコのこだわりや空間づくりのポイントを、ぜひ実際にご覧ください(^^) 見学会のWEB予約はこちらから→→ 開催日:3/7
-
2026.02.24
◇3月◇家づくり相談会のご案内
- News
- イベント
- #中区(G様邸)新築工事
家デコの2月のスケジュールをご案内します! 大変嬉しいことに、年明けから相談会のご予約が増えております。ということで、2月は相談会の日程を増やしてご対応予定です(^^) 家デコでは現在、広島市佐伯区皆賀と広島市安
CATEGORIES
TAGS
RECENT POSTS
- 2026.03.11 販売中の住まい「皆賀の家」、家デコスタッフがお手入れしています!~室内のお手入れ編~
- 2026.03.04 販売中の住まい「皆賀の家」、家デコスタッフがお手入れしています!~外構のお手入れ編~
- 2026.02.27 3月に家デコの「皆賀の家」見学会を開催します!
- 2026.02.24 ◇3月◇家づくり相談会のご案内
- 2026.02.19 「中古+リノベ」で、無理なく理想の暮らしを叶える✨
- 2026.02.12 家デコおすすめのプランをご紹介♪【広島市佐伯区皆賀】
- 2026.02.07 インスタグラムで人気、おしゃれな洗面空間特集!
- 2026.02.02 【残り1区画・安芸区船越】JR海田市駅まで徒歩10分!ファミリー世帯に人気のエリアで土地販売中【広島市安芸区船越】








